PH tipo casa a estrenar con cochera y jardín en Boulogne

PH tipo casa a estrenar con cochera y jardín en Boulogne

Los rankings se basan en ajuste y costo estimado. Los propietarios no pueden pagar para aparecer primero.

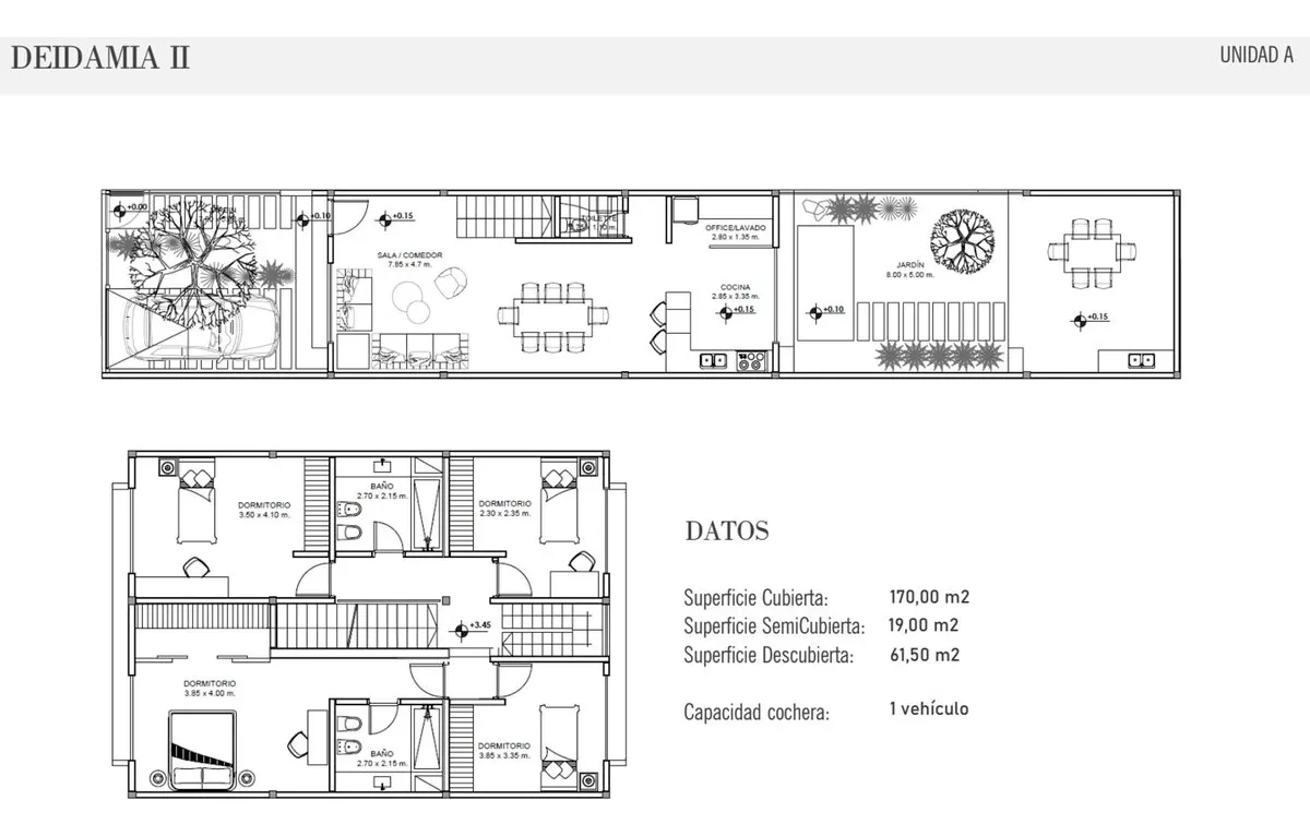
4 dormitorios · 3 baños · Boulogne · Blas Parera 200, San Isidro, San Isidro, Bs.As. G.B.A. Norte

Sobre este lugar

PH tipo casa a estrenar con 4 dormitorios, en 2 niveles, de 170 m² cubiertos. Incluye 19 m² semi cubiertos y 61 m² entre espacio jardín, patio y entrada. Se ingresa por portón vehicular automático con cochera privada. En planta baja cuenta con living comedor integrado, comedor, cocina completa, office con lavadero integrado y un toilette; además, quincho semi cubierto. En planta alta hay 4 dormitorios, uno en suite con baño en suite, y un baño completo. La unidad tiene iluminación en los ambient

Amenidades

Confort

  • WiFi

Cocina

  • Hornalla

Edificio

  • Cochera

Ubicación

7 lugares nombrados a pie

  • Márquez Colectivo 4 min caminando
  • Felino Restaurante 4 min caminando
  • Carrefour Market Supermercado 6 min caminando
  • Spot Café 6 min caminando
  • Energym Gimnasio 6 min caminando
  • Azul Farmacia 7 min caminando
  • Plazoletas Presidente Perón / de la Reconquista Plaza 10 min caminando
US$ 4,054
/mes
Coordinar visita