Casa moderna en alquiler en Nuñez
Los rankings se basan en ajuste y costo estimado. Los propietarios no pueden pagar para aparecer primero.
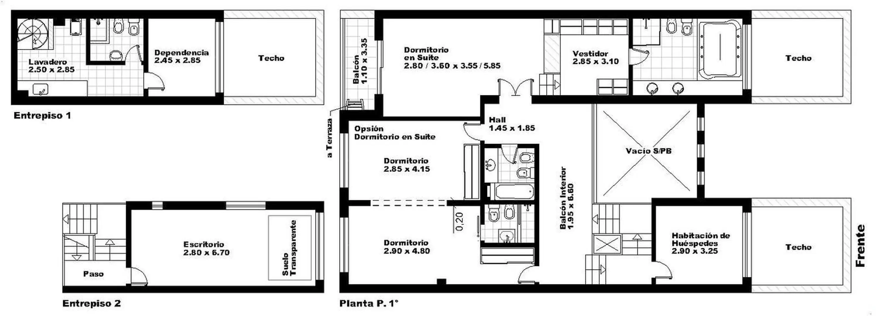
Sobre este lugar
Casa en Lomas de Núñez en 3 plantas, con jardín, piscina y cochera cubierta para 2 autos. Dispone de calefacción por radiadores y aire acondicionado en distintos ambientes. Construida hace 15 años y remodelada en 2018, con hall de entrada en doble altura, living-comedor con salida a galería y cocina con muebles a medida y barra desayunadora. Incluye galería cubierta con parrilla, jardín, piscina, sótano de guardado, entrepiso con ambiente multifuncional y dependencia de servicio con baño complet
Amenidades
Confort
- WiFi
- Aire acondicionado
- Calefacción
- TV
Cocina
- Hornalla
Espacio de trabajo
- Escritorio
Edificio
- Gimnasio
- Pileta
- Cochera
Exterior
- Balcón
- Terraza
Ubicación
8 lugares nombrados a pie
- Ramallo y Grecia Colectivo 2 min caminando
- Súper Wok Café 3 min caminando
- Tendy Supermercado 4 min caminando
- Bastardo Restaurante 4 min caminando
- Plaza Félix Lima 5 min caminando
- Soy Tu Farmacia Farmacia 6 min caminando
- Ramallo Metrobús 8 min caminando
- Napp Gimnasio 8 min caminando