Casa comercial en alquiler con 7 habitaciones en Caballito

Casa comercial en alquiler con 7 habitaciones en Caballito

Los rankings se basan en ajuste y costo estimado. Los propietarios no pueden pagar para aparecer primero.

7 dormitorios · 2 baños · Caballito · Thompson Al 800, Parque Chacabuco, Capital Federal, Capital Federal

Sobre este lugar

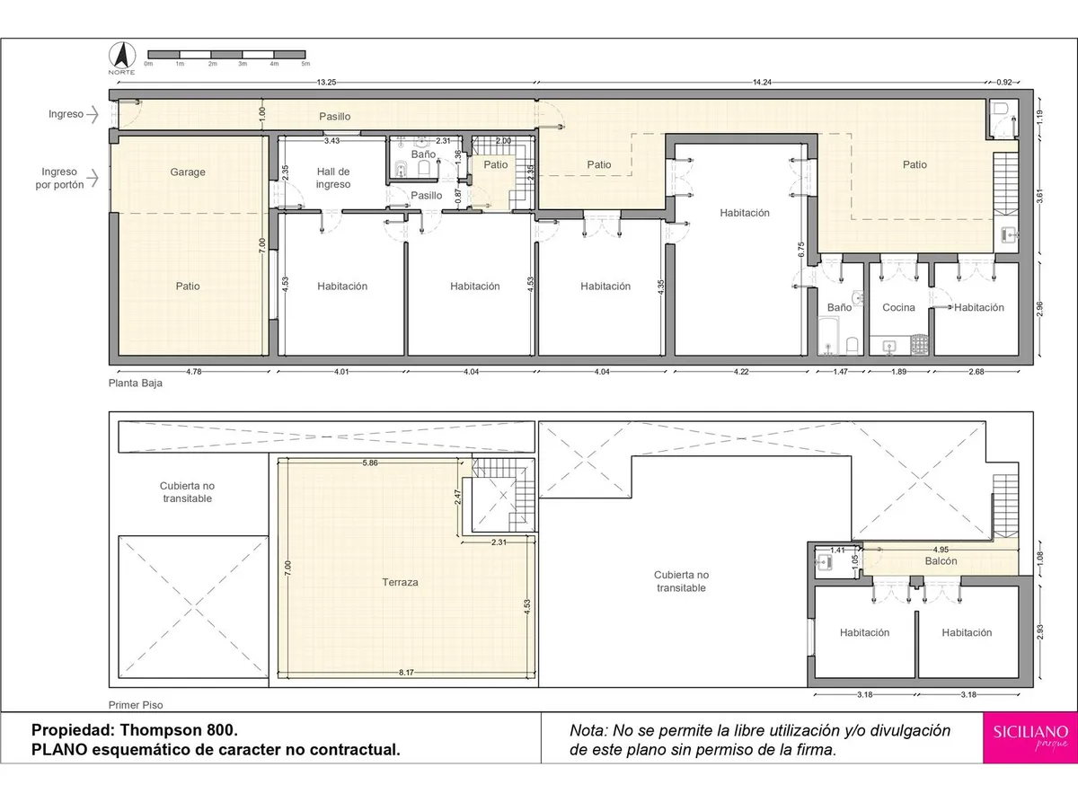
Casa apta uso comercial sobre lote propio, en Parque Chacabuco (límite Caballito), con doble ingreso peatonal y por portón. Cuenta con 7 habitaciones, cocina, 2 baños, garage y 3 patios. Superficie total construida de 312 m² (aprox.), con 154 m² cubiertos, 28 m² semicubiertos y 130 m² descubiertos, sobre un terreno de 241,1 m². Disposición entre medianeras, PB + 1 piso, orientación oeste y estado a reciclar. Están indicadas instalaciones de agua, gas y electricidad; no abona expensas. Thompson 8

Amenidades

Confort

  • WiFi

Cocina

  • Hornalla

Edificio

  • Cochera

Exterior

  • Balcón

Ubicación

10 lugares nombrados a pie

  • La Canastita Restaurante 2 min caminando
  • Centenera y Zuviría Colectivo 3 min caminando
  • Patio Félix Liceaga Plaza 3 min caminando
  • Dia Supermercado 3 min caminando
  • Farmacity Farmacia 6 min caminando
  • Bonafide Café 6 min caminando
  • José María Moreno Subte 7 min caminando
  • Gimnasio Rocky 8 min caminando
  • Parque Chacabuco Parque principal 11 min caminando
  • Parque Chacabuco Parque grande 11 min caminando
US$ 4,991
/mes
Coordinar visita