Monoambiente en alquiler en Microcentro

Monoambiente en alquiler en Microcentro

Los rankings se basan en ajuste y costo estimado. Los propietarios no pueden pagar para aparecer primero.

Monoambiente · 1 baño · San Nicolás · Viamonte Al 600, Capital Federal

Sobre este lugar

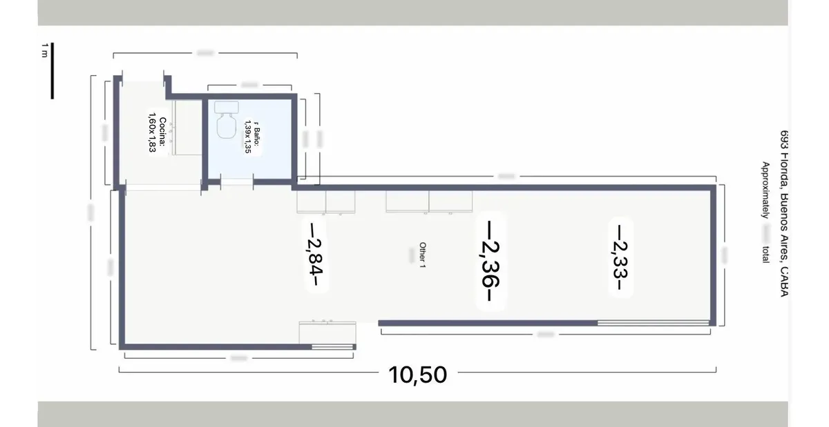
Departamento monoambiente de 31,17 m² cubiertos totales, ubicado en Viamonte al 600, esquina Florida, en pleno Microcentro porteño. Cuenta con ambiente principal de 26,36 m², cocina independiente, baño completo y balcón semicubierto de 1,73 m².

Amenidades

Confort

  • WiFi
  • Aire acondicionado

Exterior

  • Balcón

Ubicación

10 lugares nombrados a pie

  • Posta Express Supermercado 2 min caminando
  • Azul Farmacia 2 min caminando
  • Florida Café 2 min caminando
  • Otra Pasta Restaurante 2 min caminando
  • Florida Colectivo 3 min caminando
  • Buenos Aires Dance Club Gimnasio 3 min caminando
  • Plazoleta Suipacha Plaza 5 min caminando
  • Florida Subte 6 min caminando
  • Paraguay Metrobús 6 min caminando
  • Plaza San Martín Parque principal 8 min caminando
US$ 804
/mes
Coordinar visita