Monoambiente a estrenar en Villa Urquiza

Monoambiente a estrenar en Villa Urquiza

Los rankings se basan en ajuste y costo estimado. Los propietarios no pueden pagar para aparecer primero.

Monoambiente · 1 baño · Villa Urquiza · Avenida Congreso 5801

Sobre este lugar

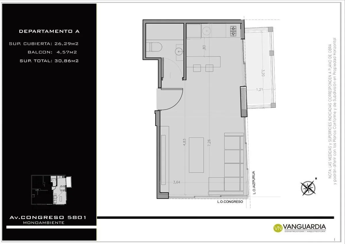
Departamento monoambiente de 30,86 m² totales (26,29 m² cubiertos) en el piso 5°A, frente. Cuenta con ambiente con ventanal y salida a balcón, y cocina integrada con anafe y horno eléctrico. Agua caliente central con termotanques Rheem; instalación preparada para AA frío/calor en cada ambiente. A dos cuadras de Av. de los Constituyentes y cercano a Av. General Paz, con acceso a Subte B en estación Juan M. de Rozas y a tren Urquiza.

Amenidades

Confort

  • WiFi
  • Aire acondicionado

Cocina

  • Hornalla
  • Horno

Edificio

  • Ascensor

Exterior

  • Balcón

Ubicación

9 lugares nombrados a pie

  • Dia Supermercado 1 min caminando
  • Congreso y Achega Colectivo 2 min caminando
  • Poisson Farmacia Farmacia 4 min caminando
  • Obra Café 5 min caminando
  • Aurum Gym Gimnasio 5 min caminando
  • Plaza Leandro N. Alem Parque grande 7 min caminando
  • Plaza Leandro N. Alem 7 min caminando
  • Parque General Paz Parque principal 15 min caminando
  • Juan Manuel de Rosas Subte 18 min caminando
US$ 952
/mes
Coordinar visita