Rankings are based on estimated fit and cost. Landlords cannot pay to rank higher.
2 bedrooms
· 1 bath
· Colegiales
· Zabala al 2400
About this place
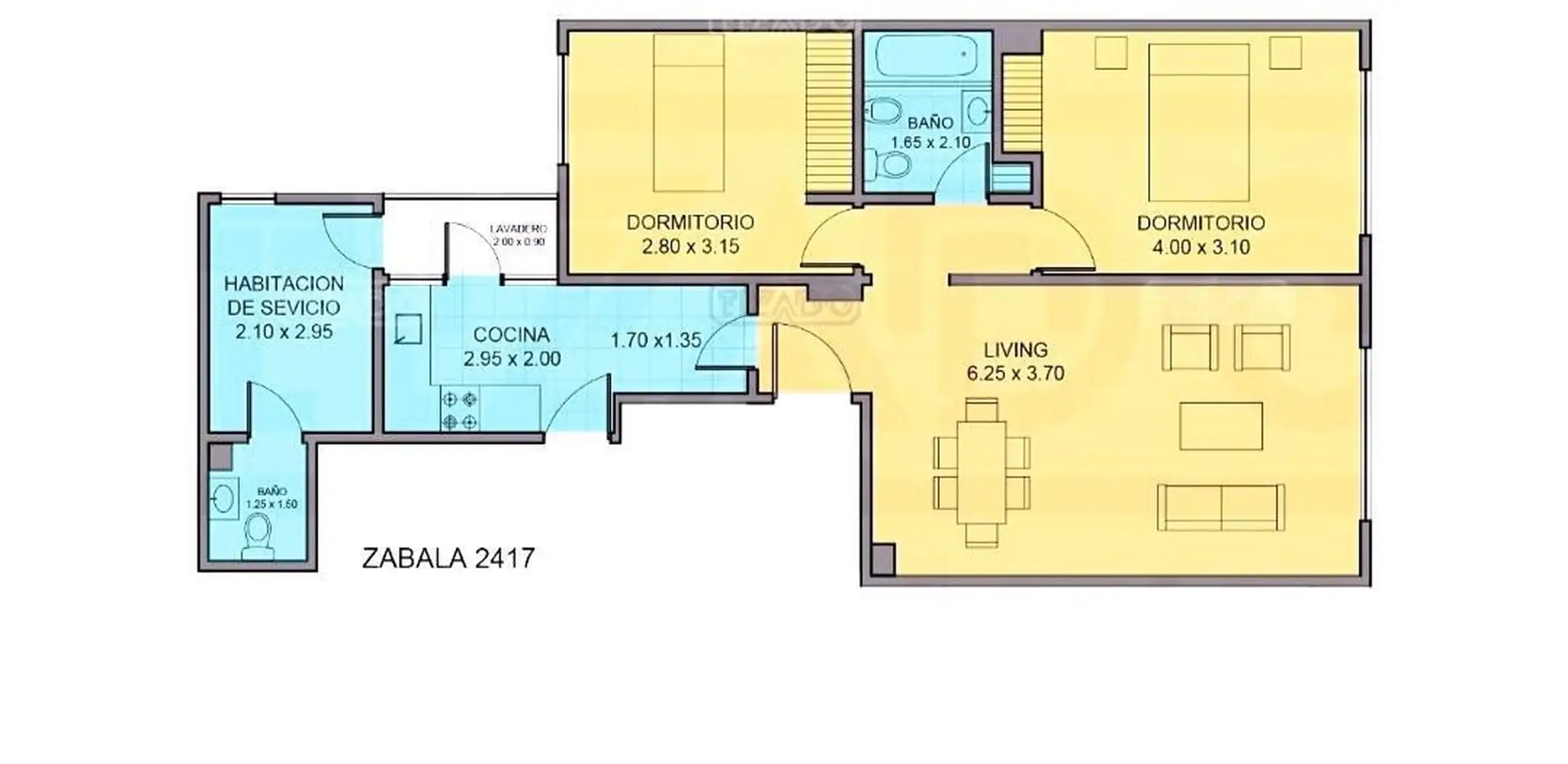
Apartment in Colegiales with 3 rooms at the front and a service dependency. Located on the 1st floor to the street-facing side, with a semi-private landing and a reception hall leading to a front living-dining room. It has two bedrooms, a full bathroom, an independent large kitchen, and an independent laundry area. Central water and heating are included. The unit has hardwood floors, panelled wall finishes in the living-dining area and reception hall, and includes an undivided share of a storage
Amenities
Comfort
WiFi
AC
Heating
Kitchen
Stove
Location
10 named places within walking distance
Céspedes · Bus1 min walk
Farmacity · Pharmacy1 min walk
Pollos Al Spiedo · Restaurant1 min walk
Zabala · Metrobus2 min walk
Le Marche · Supermarket2 min walk
Café Martínez2 min walk
Instituto Choy Lee Fut Kung Fu Familia Chan · Gym3 min walk