Brand new studio apartment in Núñez

Brand new studio apartment in Núñez

Rankings are based on estimated fit and cost. Landlords cannot pay to rank higher.

Studio · 1 bath · Núñez · Ohiggins Al 3800, Núñez, Capital Federal

About this place

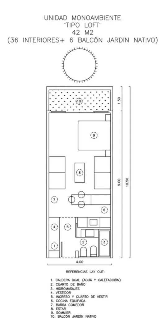
Brand new studio apartment on the 3rd floor in BLANC, a design-led boutique building in Núñez. The unit has 42 m², a modern bathroom with bathtub and double shower, an American kitchen with a breakfast bar, and a 6 m² terrace balcony with native-plant “green” flooring and independent irrigation. Heating is provided by hot-water underfloor heating with an individual dual gas boiler; there are double-glazed (DVH) aluminium windows, a gas cooktop with oven, a kitchen extractor hood, and pre-install

Amenities

Comfort

  • WiFi
  • Heating

Kitchen

  • Stove
  • Oven
  • Dishwasher

Building

  • Gym
  • Pool

Outdoor

  • Balcony

Location

9 named places within walking distance

  • Super Arcos Supermarket 2 min walk
  • Plazoleta Lucila Yaconis Plaza 3 min walk
  • Traiano Restaurant 3 min walk
  • Larralde y Arcos Bus 4 min walk
  • Traiano Café 4 min walk
  • Chakana Gym 4 min walk
  • Once Pharmacy 5 min walk
  • Manzanares Metrobus 7 min walk
  • Congreso de Tucumán Metro 18 min walk
US$ 1,257
/month
Arrange a viewing