Casa com 4 dormitórios em Belgrano, térreo com piscina e área de churrasco

Casa com 4 dormitórios em Belgrano, térreo com piscina e área de churrasco

Os rankings são baseados em ajuste e custo estimado. Proprietários não podem pagar para aparecer primeiro.

4 quartos · 5 banheiros · Belgrano · Mendoza Al 1100, Belgrano, Capital Federal

Sobre este imóvel

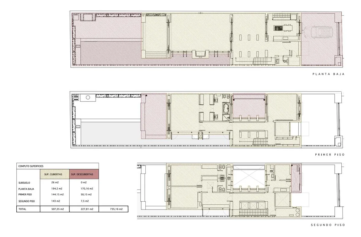
Casa em Bajo Belgrano com 3 andares, 735 m² no total, 507 m² cobertos e 227 m² descobertos. No térreo há vaga para 2 autos, hall de entrada e lavabo, living com lareira e grandes janelas voltadas para o parque e a piscina, sala de jantar separada e cozinha com ilha, além de acesso a uma adega no subsolo. O exterior inclui galeria coberta, jardim, piscina e área de churrasco; no 1º andar fica a suíte master com terraço privativo, closet e banheiro completo com hidromassagem, além de 1 dormitório/

Comodidades

Conforto

  • WiFi
  • Ar condicionado
  • Aquecimento

Cozinha

  • Fogão
  • Lava-louças

Lavanderia

  • Lavadora
  • Secadora

Espaço de trabalho

  • Escritório

Prédio

  • Piscina
  • Estacionamento

Exterior

  • Varanda

Localização

7 locais nomeados a pé

  • Mendoza y Cazadores Ônibus 1 min a pé
  • Mendieta Restaurante 4 min a pé
  • Cuervo Café 5 min a pé
  • Plaza Jardín de Esculturas Praça 6 min a pé
  • Super LYC Supermercado 6 min a pé
  • Tango Fitness Club Academia 6 min a pé
  • Oasis Farmácia 9 min a pé
US$ 17,129
/mês
Agendar visita