Casa de estilo com 9 dormitórios em Flores

Casa de estilo com 9 dormitórios em Flores

Os rankings são baseados em ajuste e custo estimado. Proprietários não podem pagar para aparecer primeiro.

9 quartos · 2 banheiros · Flores · Calle Doctor Juan F. Aranguren al 3800

Sobre este imóvel

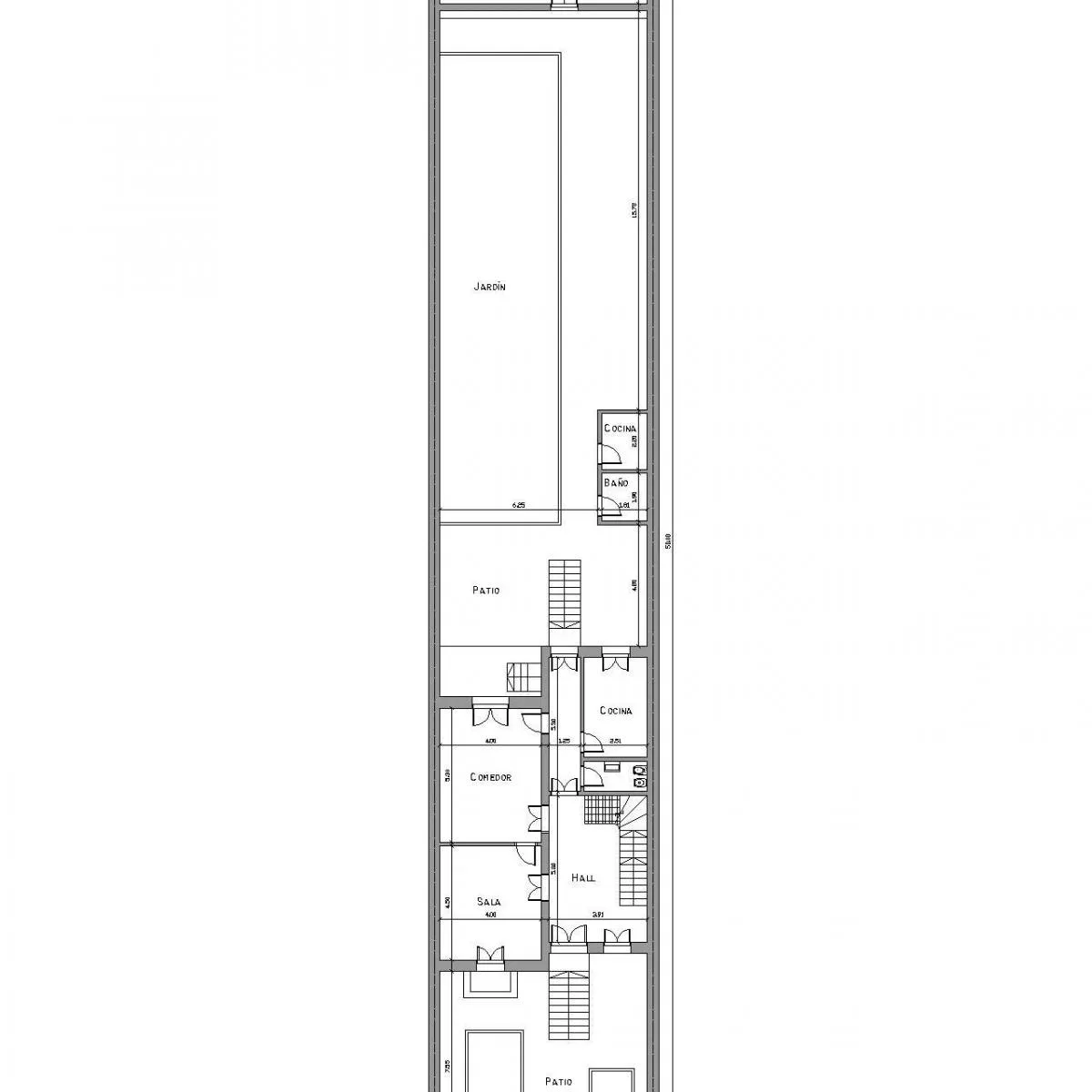
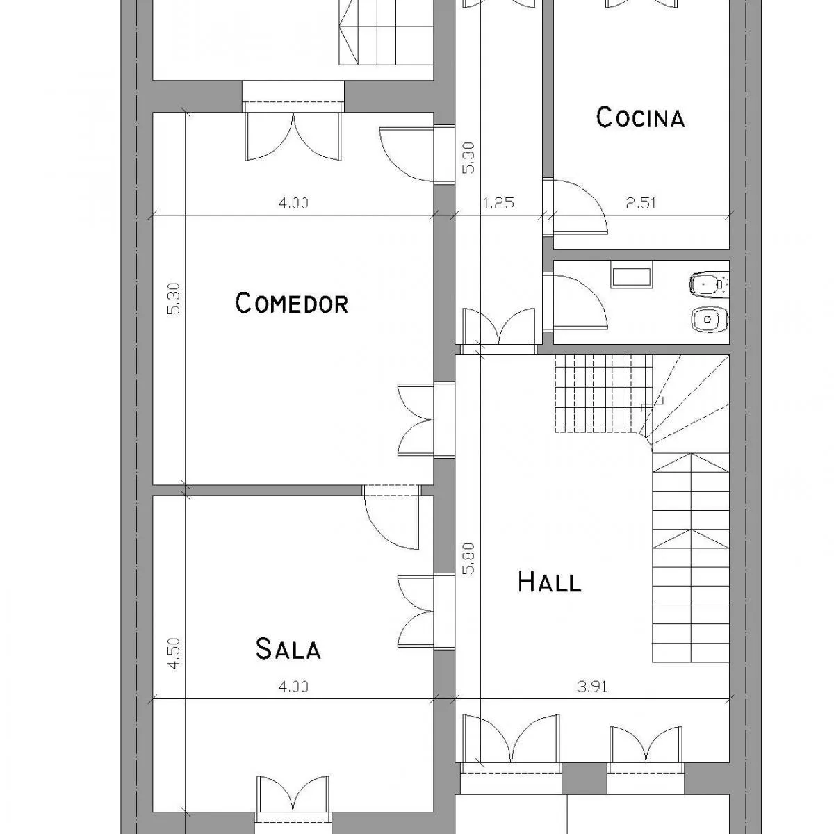
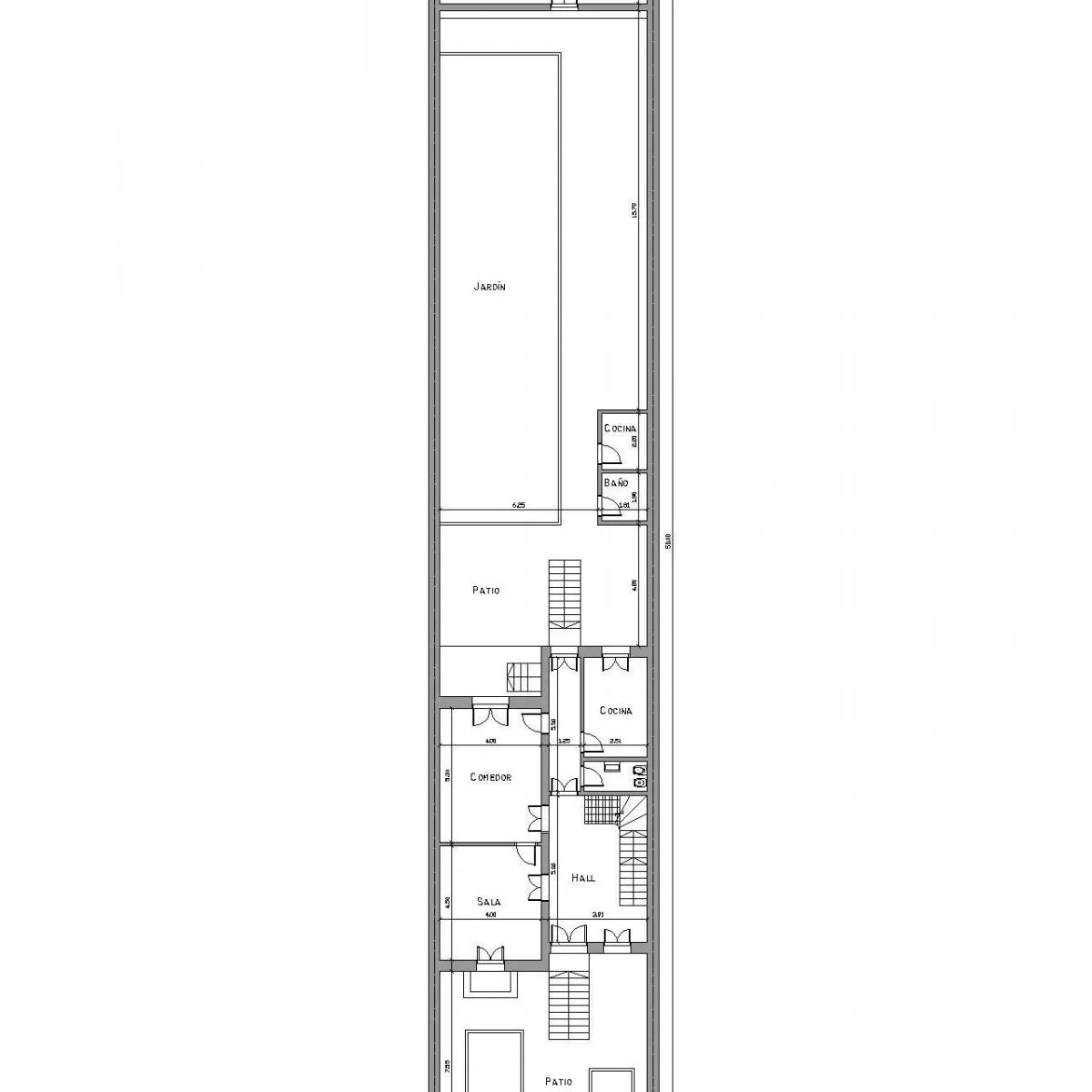
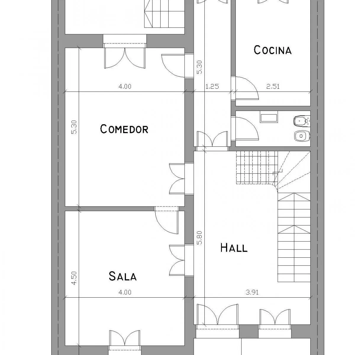
Casa de estilo com 330 m² cobertos em um terreno de 450 m², em Flores. Conta com 9 ambientes, todos com vista para o exterior, e 2 banheiros completos. Possui escadas de mármore Carrara e pisos de pinotea original. No exterior, tem 2 varandas voltadas para a rua e 1 varanda para os fundos, além de um parque arborizado e um quiosque coberto para eventos, com área de fundo para recreação ou expansão de atividades. Fica a 1 quadra de Av. Avellaneda, a 4 quadras de Av. Juan B. Justo e a 5 quadras de

Comodidades

Conforto

  • WiFi
  • Ar condicionado
  • Aquecimento

Cozinha

  • Fogão
  • Forno

Lavanderia

  • Lavadora

Prédio

  • Academia

Exterior

  • Varanda

Pets

  • Permite animais

Localização

9 locais nomeados a pé

  • Aranguren y Gavilán Ônibus 2 min a pé
  • Dia Supermercado 5 min a pé
  • Romero Café 5 min a pé
  • Lo de Ruben Restaurante 5 min a pé
  • Flores Farmácia 6 min a pé
  • Plaza Patio Porteño Fray Cayetano Praça 8 min a pé
  • OnFit Academia 10 min a pé
  • San José de Flores Metrô 11 min a pé
  • Artigas Metrôbus 18 min a pé
US$ 4,844
/mês
Agendar visita