Рейтинг основан на оценочной стоимости и соответствии. Арендодатели не могут платить за более высокое место.
2 спальни
· 1 ванная
· Flores
· Terrada 925
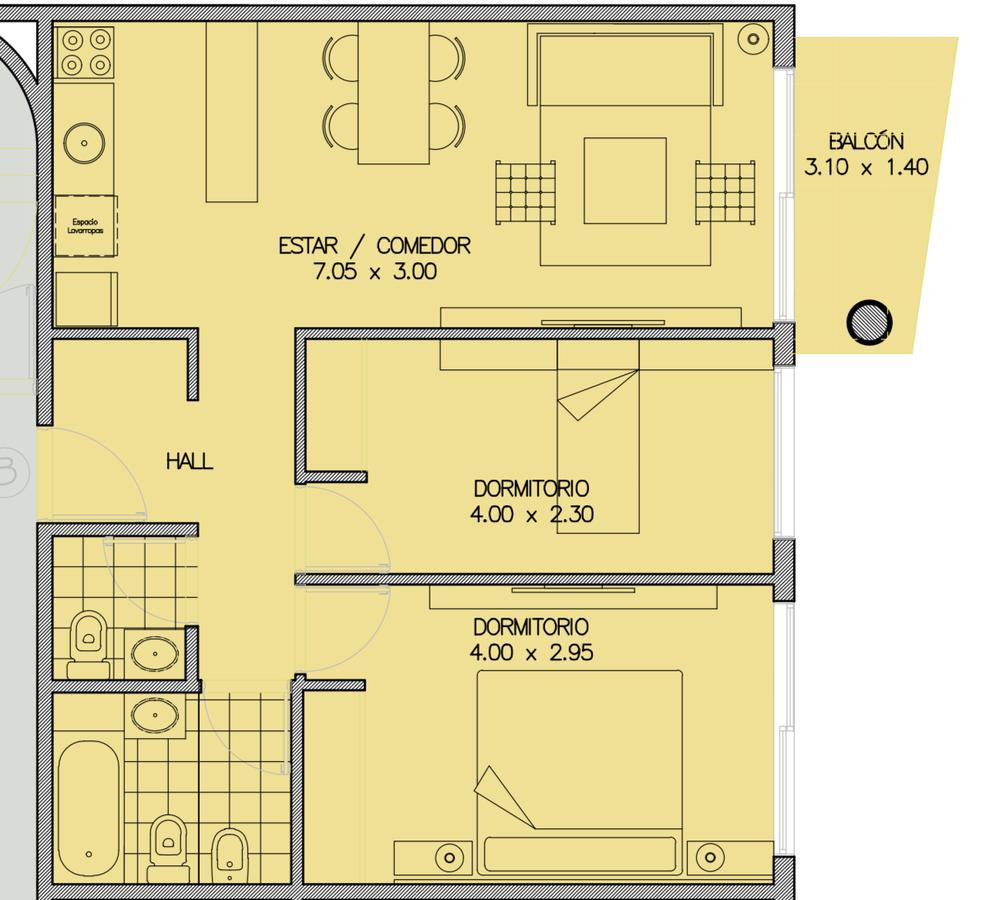
Об этом жилье
Квартира с 3 комнатами в районе Floresta (Flores), окна во двор, с балконом. В составе две спальни с встроенными шкафами, гостиная-столовая, интегрированная кухня с электрической плитой, навесными шкафами и тумбой с местом для стиральной машины. Есть туалет и отдельная ванная. Установлены керамическая плитка во всех помещениях, современное здание с SUM и зоной гриля, предусмотрено (закреплённое) парковочное место.