Дом на 6 комнат в Belgrano с 4 спальнями и гаражом на 2 машины
Рейтинг основан на оценочной стоимости и соответствии. Арендодатели не могут платить за более высокое место.
Об этом жилье
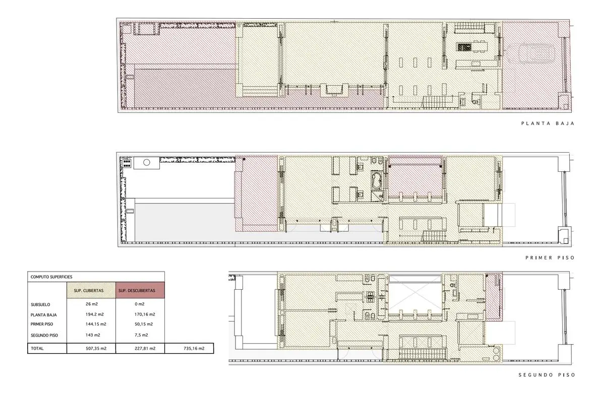
Дом в Bajo Belgrano площадью 735 m² на 3 уровнях. На нижнем этаже предусмотрено парковочное пространство на 2 автомобиля и главный вход с холлом и туалетом для приёма, далее гостиная-столовая с окнами на парк и бассейн, отдельная столовая и кухня с островом. На цокольном уровне есть вход в винный погреб; снаружи расположены крытая галерея, сад, бассейн и зона гриля. Первый этаж включает master suite с частной террасой, гардеробной и полноценной ванной с гидромассажем, а также второй спальней/каб
Удобства
Комфорт
- WiFi
- Кондиционер
- Отопление
Кухня
- Плита
- Посудомоечная машина
Прачечная
- Стиральная машина
- Сушильная машина
Рабочее место
- Рабочее место
Здание
- Бассейн
- Парковка
На улице
- Балкон
Местоположение
7 мест с названием в пешей доступности
- Mendoza y Cazadores Автобус 1 мин пешком
- Mendieta Ресторан 4 мин пешком
- Cuervo Кафе 5 мин пешком
- Plaza Jardín de Esculturas Площадь 6 мин пешком
- Super LYC Супермаркет 6 мин пешком
- Tango Fitness Club Спортзал 6 мин пешком
- Oasis Аптека 9 мин пешком