Четырёхспальная вилла в Araucarias (Haras del Sur III) в La Plata
Рейтинг основан на оценочной стоимости и соответствии. Арендодатели не могут платить за более высокое место.
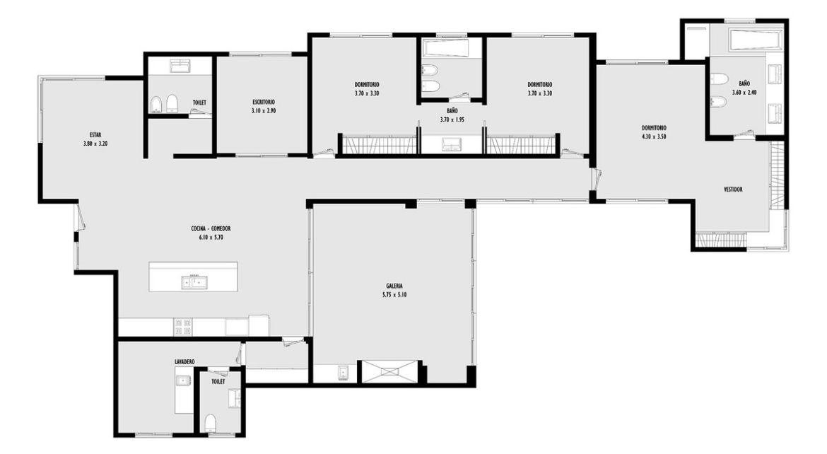
Об этом жилье
Дом на 4 спальни в Araucarias, Haras del Sur III, La Plata. Одноэтажная планировка с внутренней компоновкой, ориентация на север. Кухня открытой планировки объединена с гостиной-столовой, есть туалет, прачечная, помещение под кабинет или офис, 4 спальни (одна сьют с гардеробной и собственной ванной с джакузи), 2 полных ванные и комната для персонала с собственной ванной. Снаружи — полузакрытая галерея с зоной гриля и большой сад с подогреваемым бассейном. Центральное отопление и тёплый пол (losa
Удобства
Комфорт
- WiFi
- Кондиционер
- Отопление
Кухня
- Плита
Прачечная
- Стиральная машина
Рабочее место
- Рабочее место
Здание
- Бассейн
- Парковка
На улице
- Терраса
Питомцы
- Животные разрешены